网站首页
公司简介
产品中心
公司荣誉
新闻中心
营销网络
服务理念
联系我们
产品列表
Products
管式反应器
管道过滤器
滤件系列
精细过滤器
自洁式过滤器
空气过滤器
混合设备
管道小设备
洗眼器
消声器
规整填料
排水器
高效换热器
产品中心>>精细过滤器
陶瓷滤芯精细过滤器JHGP型
产品特性
陶瓷精细过滤器是以多孔陶瓷芯为过滤元件的气、液、固分离
与净化装置,具有价格低廉,过滤效率高,易于反吹和连续化运行
等优点, 特别适用于强酸、强碱、高温、高压介质的精密过滤与
分离。
典型应用
液体过滤:
-工业污水,生活废水处理,自来水澄清,除味和除菌;
-饮料、食品、酿造行业中过滤、除菌,电子、制药、光学透镜研
磨用高纯水制备;
-化工行业:酸、碱性液体过滤,酒精回收等,如各种电解、电镀
液处理、纯碱过滤、丙烯腈、粘胶过滤等;
-制药行业中各种药水过滤,如青霉素,链霉素、针剂等;
气体过滤:
-压缩空气中杂质、油过滤;
-啤酒、制药、酿造行业中无菌空气制备;
-石化行业中干气过滤、催化气体过滤
-环保行业中高温烟气除尘
-化纤行业中气体混合与净化。
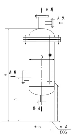
JHGP型陶瓷精细过滤器典型结构与尺寸
注:表中液体流量均指水的流量,气体流量均指标准状况下空气流量。
各种滤芯主要技术指标
不锈钢纤维烧结滤芯
金属粉末烧结滤芯
不锈钢网烧结滤芯
陶 瓷 滤 芯
线缠绕式滤芯
外径 ——Φ65mm;内径——Φ29mm;长度——250、500、750、1000mm
耐压——0.5MPa;耐温——60℃(聚丙烯骨架)、120℃(不锈钢骨架、棉滤层)、280℃(不锈钢骨架、玻纤滤层)过滤精度——0.5、0.8、1、3、5、10、20、30、50、75、100μm
聚丙烯折叠式滤芯
过滤精度(μm ):0.1、0.2、0.45、1、2、3、5、10、30、60
耐压(MPa):0.4
最高工作温度(℃):80
最高消毒温度(℃):120、(0.1MPa)
尺寸规格:内径——Φ30mm;外径——Φ65mm;长度——250、500、750、1000mm
精细过滤器技术参数提交单
订货须知
1、精细过滤器种类繁多,参数不尽相同,请正确填写“精细过滤器技术参数提交单”与我公司技术部联系,我们将为您设计最合适的过滤器。
2、本公司生产的精细过滤器拉接管法兰可按HG、HGJ、GB、JB/T、SH或ANSI、JIS等标准制造,用户在订货时应在合同中注明法兰标准及规格。
3、精细过滤器的进出口压差是验证滤件使用情况的重要手段,因此,建议用户在精细过滤器进出口管系上安装压力表,如需远距离检测或警报系统,请在订货时提出。
4、除样本所列产品外,我公司可根据用户要求,提供非标过滤器的设计和制造。
<< 返回
南通沃尔驰石化工程有限公司 地址:启东市汇龙镇中央河中路691号 邮编:226200 http://www.qdhtxj.com E-mail:13862978163@126.com
电话:0513-83325673 传真:0513-83119878 手机: 13862978163
管式反应器
管道反应器